一、概述
DXZ系列電動干油站適用于潤滑頻率低,配管長度在100米以下,潤滑點約在300點以下,公稱壓力為10MPa的雙線式干油集中潤滑系統中,作為供送潤滑劑的輸送裝置。對于無自動控制要求的重型,礦山小型設備中的干油集中潤滑系統尤為適宜。
該系列電動干油站是一種由電動機直接驅動,經減速帶動壓油柱塞泵元件,而排出潤滑脂的電動干油站。一般與雙線給油器配用,由安裝在系統管路末端的壓力 操作閥來控制電磁閥的換向,實現交替向系統兩供油主管供油的功能。
|
|
|
二、技術參數
型 號 |
公稱壓力 |
給油能力 |
貯油器容積 |
電機功率 |
電磁鐵型號 |
重 量 |
MPa |
mL/min |
L |
kW |
適用電源 |
kg |
DXZ-100 |
10 |
100 |
50 |
0.55 |
FJ1-4.5
50Hz~220V
|
148 |
DXZ-315 |
315 |
75 |
0.75 |
192 |
DXZ-630 |
630 |
120 |
1.1 |
235 |
使用介質為錐入度250~350(25℃,150g)1/10mm的潤滑脂(NLGI0#-2#)。 |
|
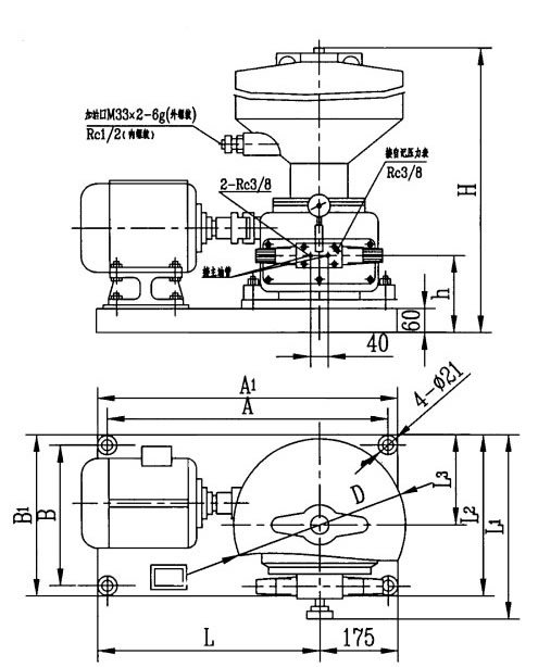
三、 外形尺寸 |
|
型 號 |
A |
A1 |
B |
B1 |
h |
D |
L≈ |
L1≈ |
L2 |
L3 |
H≈ |
最高 |
最低 |
DXZ-100 |
460 |
510 |
300 |
350 |
151 |
408 |
406 |
414 |
368 |
200 |
1330 |
925 |
DXZ-315 |
550 |
600 |
315 |
365 |
167 |
474 |
434 |
392 |
210 |
1770 |
1165 |
DXZ-630 |
508 |
489 |
1820 |
1215 |
|
 |
|
四、型號標注說明 |
 |
|
五、使用說明 |
1、該系列電動干油站應安裝在環境溫度合適,灰塵少,便于調整、檢查、維修和拆洗及補脂方便的地方。
2、該系列電動干油站應盡可能布置在系統的中心位置,縮短系統配管長度,保持最低壓力降,使泵能產生足以克服潤滑點背壓的壓力。
3、使用前必須先向干油站減速箱體內加入50#機械油至油標規定液面。
4、向貯油器內補脂必須使用DJB-200型電動加油泵從貯油器的加油器的加油口加入,在貯油器內無潤滑脂有情況下嚴禁啟動電動泵運轉。
5、電磁換向閥上留有連接接口為Rc3/8的自己壓力表接口,如不需要時可用Rc3/8螺塞堵死。
6、電磁換向閥上的調壓閥,可以在0~10MPa范圍內任意調節,在使用時不允許超過泵的公稱壓力(10MPa)。
7、干油站初用二個月必須拆下電磁閥二端電磁鐵檢查接合面處有否潤滑從頂桿密封處滲漏出,如有滲漏應及時更換密封件以免 燒壞電磁鐵,以后注意,經常檢查。
8、該系列電動干油站為室內安裝型,在室外或環境惡劣的場合使用時,必須采取防護措施。 |
|